Property
レイクサイドⅠ・Ⅱ
価格
14,700万円 表面利回り
13.46%
所在地:福岡県宗像市赤間6丁目7番3号
交通:JR【教育大前駅】徒歩3分
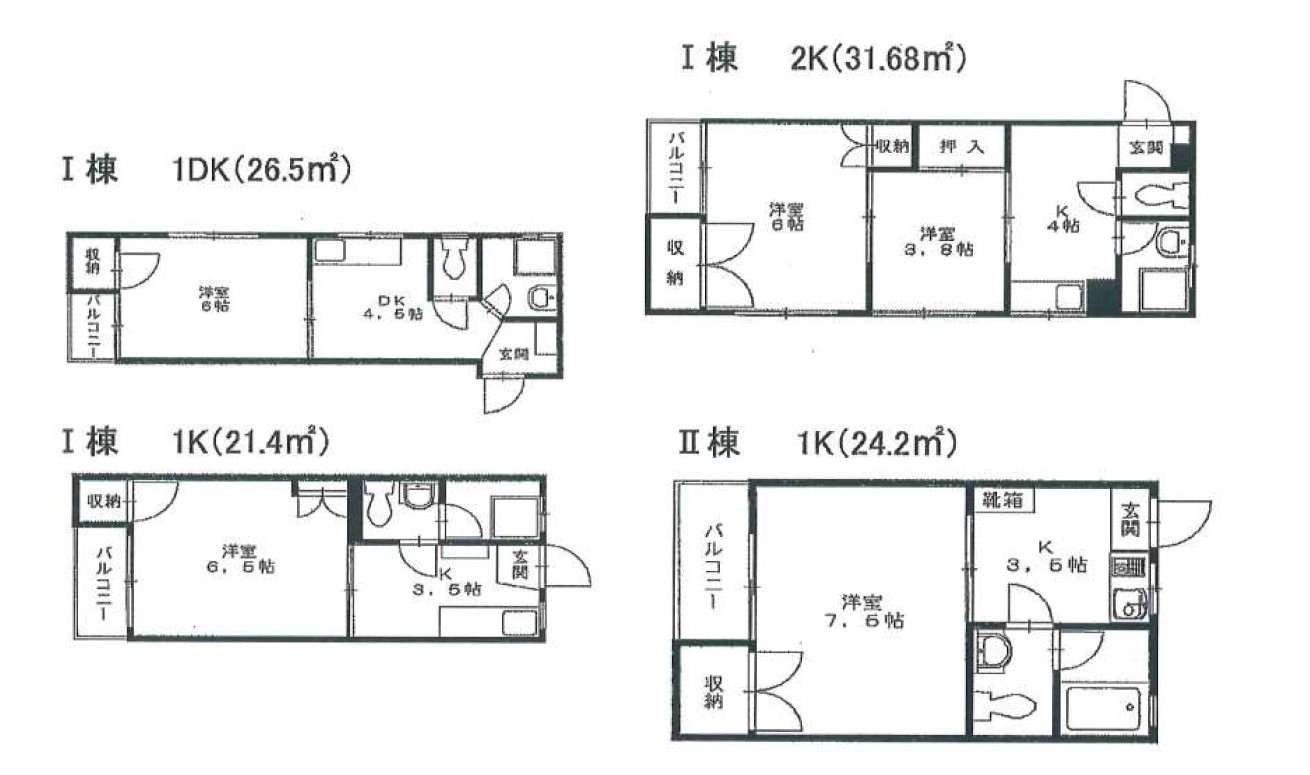
間取り:1K×36戸、2K×6戸、1DK×6戸 / 構造鉄骨造 / 3階建 / 種別:1棟 / 築年月:1985年3月 / 階数:3階建
物件詳細
| 物件名 | レイクサイドⅠ・Ⅱ | ||
| 住所 | 福岡県宗像市赤間6丁目7番3号 | 交通 | JR【教育大前駅】徒歩3分 |
| 価格 | 14,700万円 | 利回り | 13.46% |
| 満室時年収 | 1,978万円 | 現況 | |
| 構造規模 | 鉄骨造 / 3階建 | 築年月 | 1985年3月 |
| 間取り/戸数 | 1K×36戸、2K×6戸、1DK×6戸 | 用途地域 | 第1種住居地域 |
| 土地面積 | 1324.86m² | 建物面積 | 1109.97m² [335.77坪] |
| 建ぺい率 | 60% | 容積率 | 200% |
| 駐車場 | 接道状況 | ||
| 設備 | シャワー, 給湯, エアコン, フローリング, バルコニー, 室内洗濯置場, 風呂・トイレ別 | 取引態様 | 売主 |
| 備考 | |||
| レイクサイドⅡ 建物面積:319.32㎡、総戸数:12戸 1K、築年月:1991年3月 ※告知事項あり | |||
| 物件名 | レイクサイドⅠ・Ⅱ |
| 所在地 | 福岡県宗像市赤間6丁目7番3号 |
| 交通 | JR【教育大前駅】徒歩3分 |
| 価格 | 14,700万円 |
| 利回り | 13.46% |
| 満室時年収 | 1,978万円 |
| 現況 | |
| 構造規模 | 鉄骨造 / 3階建 |
| 築年月 | 1985年3月 |
| 間取り/戸数 | 1K×36戸、2K×6戸、1DK×6戸 |
| 用途地域 | 1324.86 |
| 土地面積 | 1109.97m² |
| 建物面積 | 1109.97m² [60%] |
| 建ぺい率 | 60% |
| 容積率 | 200% |
| 駐車場 | |
| 接道状況 | |
| 設備 | シャワー, 給湯, エアコン, フローリング, バルコニー, 室内洗濯置場, 風呂・トイレ別 |
| 取引態様 | 売主 |
| 備考 | |
| レイクサイドⅡ 建物面積:319.32㎡、総戸数:12戸 1K、築年月:1991年3月 ※告知事項あり | |
Contact
株式会社ソソグーコンサルテイング
〒810-0004 福岡市中央区渡辺通五丁目24番30−4階
Tel092-726-0019 Fax092-726-0029
宅地建物取引業 福岡県知事(1)第17900号
※当社取扱物件以外でも、気になる物件がございましたらお気軽にご相談くださいませ。